Temora

99 DeBoos Street

FOR SALE BY EXPRESSION OF INTEREST

1
2

Land Size: 2024 m2 approx.

Character, Space and Possibility - A Landmark Property Ready for Its Next Chapter

Situated on a generous corner allotment of half an acre (2024sqm), the Uniting Church building is ready for its next chapter. This impressive brick property features classic architectural details - stained glass windows, cypress floorboards, magnificent pressed tin ceilings, and an abundance of space.

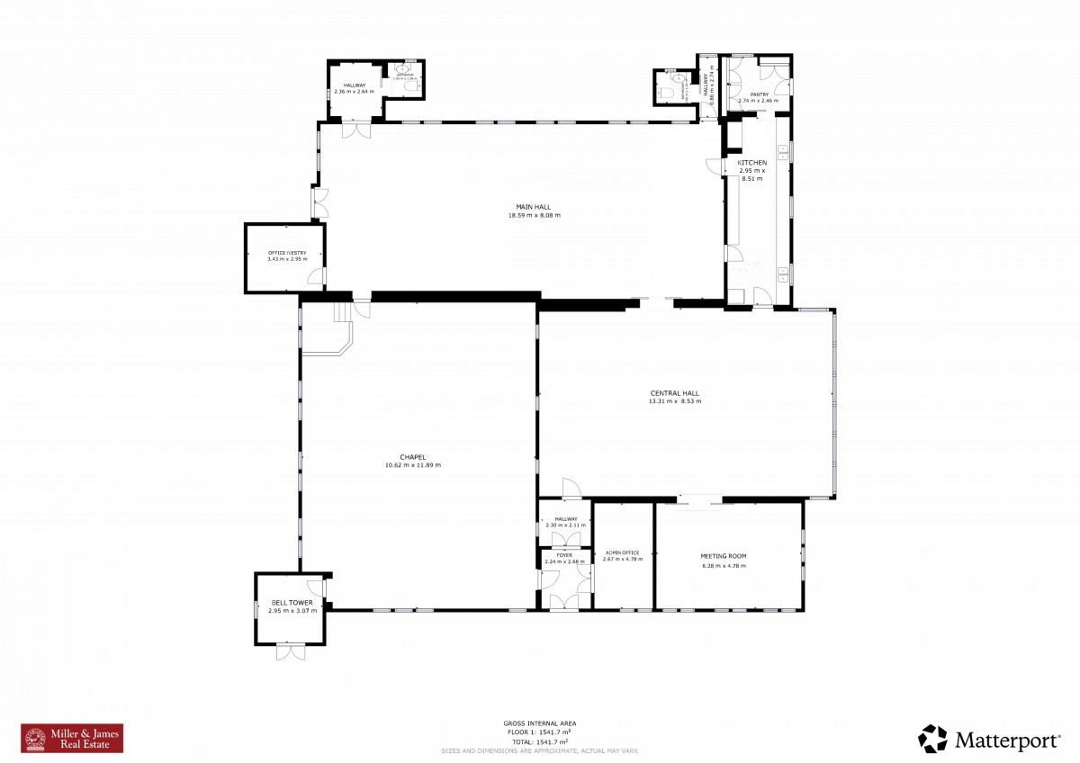
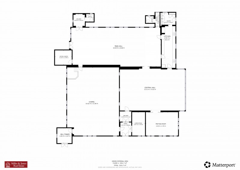
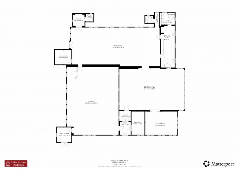
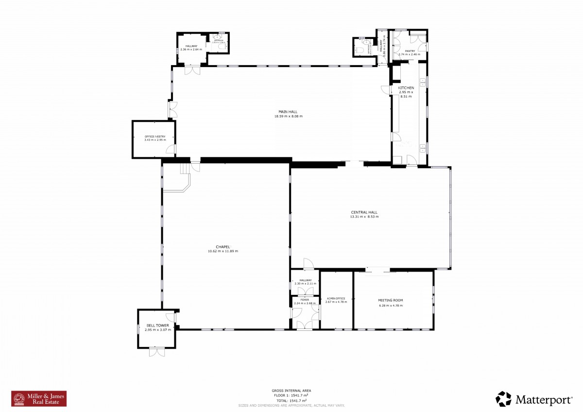
The infrastructure includes three main sections:

• Large hall - entrance off Polaris Street. Approximately 220sqm under roof with ceiling fans, a large storage area, office, separate male/female toilets, and a refurbished commercial kitchen.
• Central hall - connects the church and main hall.
• Uniting Church building - entrance off DeBoos Street. Includes original stained glass windows, pressed tin ceilings, electric heating, newer gas heating, and a smaller hall/Sunday School room currently used for storage.

This distinctive property offers a range of possibilities for its future use.

PARTICULARS:
Lot 1,2 DP 758957
Property size: 2024sqm
Heritage Listed (contact agent for info/contract)

SALE METHOD:
Offered for Sale Via Expression of Interest - closing Thurs 18th Dec, 10am. Vendors reserve the right to accept offers prior.
** GST IS APPLICABLE ON THIS SALE.

Join our mailing list and we guarantee you will be informed of properties before they hit the net.

Join our Mailing List
Submit